Introduction
This guide will serve to help access and replace the O-Ring.
Preparation to Service:
- Make sure that the anesthetic machine is OFF
- Gain access to ventilator housing from this guide here
For more information on replacing the O-rings, please refer to page 26 in the service manual.
NOTE: Screw types and lengths are not specified in the manuals
Tools
Parts
-
-
Make sure ALL gas supplies are disconnected and the system has been purged, and make sure all electrical supplies have been disconnected.
-
-
-
With one hand on the ventilator removal handle and one holding the lower half of the ventilator, pull up firmly on the handle so that the mounting slides up the slots in the frame.
-
-
-
Pull the ventilator housing towards you so that the mounting tabs come out of the frame slots rest the ventilator housing on the plastic skirt at the rear of the workstation as shown in the photo.
-
-
-
Remove the rear plastic cover by turning the single hex key retaining clip to free the cover.
-
-
-
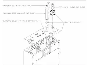
Pull out the exhaust gas tube (EV910424) and replace the O-ring in the groove on the tube and smear with silicone grease.
-
-
-
Pull out the drive gas tube (EV9104251) and replace the O-ring in the groove on the tube and smear with silicone grease.
-
-
-
Unscrew the 12 retaining screws on the top plate. Carefully lever the top plate back taking care to ensure that none of the cables connecting it to the body of the ventilator become disconnected.
-
-
-
Using tweezers, remove the O-ring from inside the blow off gas tube receptacle on the flow block. Smear the O-ring groove with silicone grease and insert the new O-ring.
-
To reassemble your device, follow these instructions in reverse order.