RU:Relation:enforcement

broom

Эта страница находится в процессе перевода или помечена для этой цели, поэтому может содержать пропуски, ошибки и непереведённые фрагменты.
Исходная статья: Relation:enforcement. Вы можете закончить перевод.
Если вы знаете английский, то можете помочь нам, переведя часть оригинальной статьи. Общие сведения о переводе статей на русский язык можно найти здесь.

enforcement
Описание
Устройства измеряющие и фиксирующие нарушения ПДД и их зона покрытия Изменить или перевести это описание.
Группа: Ограничения
Участники


  • точкалинияполигон — device
  • точка — from
  • точка — to
  • точка — force
Статус: одобрено

Это отношение обозначает различные типы устройств, которые измеряют и фиксируют нарушения ПДД, такие как:

  • Стационарный радар скорости
  • Камера фиксирующая проезд на красный свет светофора.
  • Фиксирующая дистанцию между транспортными средствами
  • Проверка массы автомоблия (для тяжелых транспортных средств)
  • Обычные места "засады" сотрудников ГИБД (радар, проверка документов, и др)


Эти устройства принадлежат к одному классу объектов и должны использовать одну схему обозначения с различными значениями. Иногда требуется сочетание значений, если устройство выполняет более одной функции (например, радар скорости и фиксация проезда на красный свет в одном устройстве).

Где обозначать?

Везде, где законодательство страны не запрещает обозначать устройства контроля скорости. Если предоставление, отображение или предупреждение об устройствах контроля в стране запрещено в программном обеспечение, то вы можете добавить информацию в базу - программное обеспечение обязательно следовать закону. Поэтому, в программе навигации анализ устройств контроля скорости должен быть реализован как плагин или отключаемая функция.

Теги

Устройства контроля соблюдения ПДД. Это не место, куда бы вы хотели пойти и, следовательно, не amenity.

Создавайте отношение для каждого устройства, так как они могут следить за разными направлениями и параметрами.

Ключ Значение Пример Пояснение
typeenforcementenforcementТип отношения.
enforcementmaxheight / maxweight / maxspeed / mindistance / traffic_signals / check / access / road_markingmaxheightКакие нарушения контролирует камера: максимальная высота / максимальный вес / максимальная скорость / минимальная дистанция / светофоры / посты или пункты контроля / доступ (например, на выделенную полосу для общественного транспорта) / контроль соблюдения разметки.
maxheight<Число> указать единицы измерения, если не в метрах4Максимальная высота (Указывать только при enforcement=maxheight)
maxweight<Число> указать единицы измерения, если не в тоннах16Максимальный вес (Указывать только при enforcement=maxweight)
maxspeed<Число> указать единицы измерения, если не в км/ч60Максимальная скорость (Указывать только при enforcement=maxspeed)
maxwidth<Число> указать единицы измерения, если не в метрах4Максимальная ширина (Указывать только при enforcement=maxwidth)
mindistance<Число> указать единицы измерения, если не в метрах80Минимальная дистанция между автомобилей (Указывать только при enforcement=mindistance)

Участники

Элемент Роль Количество участников Пояснение
точка
линия
полигон
deviceОдин или несколькоМесто расположения устройства. Для большого устройства (например для грузовиков), линия или область предпочтительнее(but must be connected to the same way). Может находиться как на линии, так и рядом с ней.
точкаfromОдин или несколькоУзел, откуда действует устройство. Если есть знак, обозначается место установки знака, если нет никаких признаков, то надо оценить расстояние, на котором водитель должны быть предупреждён, если идет с разрешённой скоростью.
точкаtoОдин или несколько (в некоторых случаях)Конец ограничения.
  • Необязательно, если device и from находятся на одной линии. В этом случае узел device является и узлом to.
  • Требуется, если device и from не находятся на одной линии (например, камера контроля скорости). to однозначно определяет направление, в котором происходит действует устройство.
точкаforceОдин или несколько — необязательныйСветофор или барьер, который мешает вам, в случае несоблюдения ПДД (потому что это опасно).

Примеры

Примеры есть на странице предложения

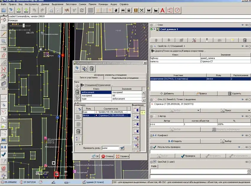
Скрин из редактора

На карте

См. также

Original proposal

This article is issued from Openstreetmap. The text is licensed under Creative Commons - Attribution - Sharealike. Additional terms may apply for the media files.