10

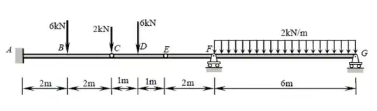
I have been attempting to solve a question where there is a point force acting on the hinge of a beam. Here is the problem:

enter image description here

I am not sure how to deal with the 2 kN point force at $C$ ($C$ and $E$ are the hinges). If I split the beam into three parts, $\overline{AC}$, $\overline{CE}$, and $\overline{EG}$, I don't know where that 2 kN force should go. If I include it in both of the equilibrium equations of $\overline{AC}$ and $\overline{CE}$, then the sum of $F_y$ will be imbalanced. I believe this problem is statically determinate but I am just stuck at this point. I don't want to attach my workings here yet as I really would like to tackle it myself with a little bit of clarification and help.

Air
  • 3,221
  • 4
  • 24
  • 46
saldtch
  • 149
  • 1
  • 2
  • 4
  • 2
    What are you trying to solve for? Are the attachments at F and G supposed to be rollers? Since the attachment at A is rigidly connected to the wall, the forces at B and C may not even play a role depending on what you are trying to solve for. – Chris Mueller Aug 04 '15 at 12:15

2 Answers2

4

I'll assume you know how to find the reactions but you're just unsure of the two hinges at C and E as that seems like your main concern. If you're not sure how to calculate the reactions I can add this later. I have used SkyCiv Beam to find the reactions:Reactions of the beam as found by SkyCiv Beam

As you can see these reactions balance just fine:

$$\sum F_y = 11 + 10 + 5 - (6+2+6+2\times6) = 26 - 26 = 0\text{ kN} \\ \sum M_A = -32 +6(2)+2(4)+6(5)+12(11)- 10(8) -5(14)= 0\text{ kN.m}$$

Now it doesn't really matter whether you choose to include the 2 kN point load at hinge C on member AC or CE. Just include it in the free body diagram (FBD) for one member or the other (NOT both!).

Let's make the 2 kN point load at C act on the right end of member AC, not the left end of member CE. Remembering that a moment can NOT be supported at the hinge C:

Member AC

$$\sum F_y = 0\\ 11 - 6 - 2 + H_C = 0\\ \therefore H_C = 3\text{ kN}$$

Now consider member CE (again no moment at C or E). The force Hc needs to be in the opposite direction as that found in the FBD for member AC:

Member CE

$$\sum F_y = 0\\ H_C + H_E -6 = 0\\ 3 + H_E - 6 = 0\\ \therefore H_E = 3\text{ kN}$$

Lastly consider member EG to confirm that it all balances fine (again the force at E needs to be opposite that in the FBD for member CE):

Member EG

$$\sum F_y = -H_E + 10 + 5 - 12 = -3 + 10 + 5 - 12 = 0 \text{ }\checkmark$$

Let's look at the shear force diagram (SFD) below and understand why it doesn't really matter which member the 2 kN point load acts on. We solved earlier that at point C the shear force was Hc = 3 kN. As you can see in the SFD there are TWO values at point C (x=4m): 5 kN and 3 kN. Obviously the difference between these values is the 2 kN point load. If we had added the point load in our diagram for member CE instead of member AC then we would have solved the shear force at point C to be Hc = 5 kN. So you can include it in either member and it will be correct - just don't include it in both members. Shear Force Diagram (SFD)

SkyCiv Beam is pretty handy for analyses like this and it's a good way to check your logic, answers and working out. It will also solve the bending moment diagram (BMD) if you need it plus deflection, stress among others.

pauloz1890
  • 1,217
  • 9
  • 11
  • This is not in fact a statically indeterminate structure, since the hinges give us two additional equilibrium conditions: $\sum M_{h\pm} = 0$, where $h\hspace{-2pt}\pm$ is one side of the hinge (left or right), which is different from the global null moment equation which considers all the moments to either side of the hinge. With these two additional equations, we now have as many equations as unknowns and can therefore solve the problem statically. See my answer for more details. – Wasabi Aug 04 '15 at 18:43
  • Another way of seeing this is using SkyCiv and releasing one of the constraints ($Y_A$, $M_A$, $Y_F$, or $Y_G$). The beam is then underconstrained. This tells us that it is currently statically determinate. – Wasabi Aug 04 '15 at 18:44
  • 2
    Yes you're correct. I've edited my answer accordingly. The original question seemed more concerned with how to treat the load at the hinge and i believe I addressed that. – pauloz1890 Aug 04 '15 at 23:23
4

While this beam presents five constraints ($X_A$, $Y_A$, $M_A$, $Y_F$, $Y_G$), it is in fact statically determinate. A statically indeterminate structure is one where there are more unknowns (constraints, in this case) than there are static equilibrium equations. Usually one has three equations: $\sum F_X = 0$, $\sum F_Y = 0$, $\sum M_? = 0$ (where $?$ is any arbitrary point). Hinges, however, give us an additional equation each: $\sum M_{h\pm} = 0$, where $h\hspace{-2pt}\pm$ is one side of the hinge (left or right), such as in this question. This is different from the global null bending moment equation which considers all forces to either side of the hinge. Adding the two additional equations given by the hinges at $C$ and $E$ to the three global equilibrium equations, we therefore have as many equations as we have contraints (5), and can therefore solve this problem by the traditional means.

That being said, there is a much easier way of doing this which is entirely hands-on, without computational aides.

For this hands-on approach, one needs to observe the double hinge in the span $\overline{CE}$. This means that the bending moment at $C$ and $E$ must be null, much like with a simply supported beam (a more in-depth explanation of why this comparison is valid can be seen at the end).

So let's replace that beam with the following pieces (notice that the loads at $C$ and $E$ are left blank for now):

enter image description here

Solving the beam representing $\overline{CE}$ is trivial. For now all we need are the reactions, which are equal to $3\text{kN}$ at each support.

Now get those reactions and toss them down to the other pieces, remembering that at $C$ there is also the concentrated $2\text{kN}$ force, which must be added. We therefore have:

enter image description here

The other pieces are also isostatic and can be trivially solved (assuming one knows how to obtain internal forces of isostatic structures). The resulting internal forces are (I changed the support at $G$ just to make that piece stable for horizontal forces, which changes nothing in this case):

enter image description here

Composing these diagrams, they are identical to those obtained by the original beam:

enter image description here

A simple reason why the comparison can be made between those double-hinges and a simply supported beam is because this is the basic principle behind Gerber beams (which is basically what $\overline{CE}$ represents). They are beams which rest on other beams (see example here, where the beams to the right and left are Gerber beams) and which can therefore be "lifted" from the rest of the structure, solved, and then have their reactions distributed to the rest of the structure. One doesn't have to worry about the influence of external forces or the neighboring beams transmitting shear forces due to the fact that the bending moment must be null at each extremity of the Gerber beam. This means that the integral of the shear along the Gerber beam must be null, which can only occur if only the loads within the beam and the reactions at its extremities are considered.

The program I used for these diagrams was Ftool, a free 2-D frame analysis tool.

Wasabi
  • 13,048
  • 7
  • 35
  • 61
  • Thanks very much for all the explanations. I was only not sure with the treatment of the hinges. I am currently trying out Ftool, however I am not sure what to enter for the material properties and section properties. Since the above problem is neglecting the weight and sections of the beam. How should I define the properties to get your results? Thanks. – saldtch Aug 17 '15 at 09:12
  • @saldtch, you'll notice that nowhere in my answer do I mention the section or material properties. This is because this is an isostatic structure. Isostatic structures do not care about such things. So you can apply whichever properties you want (other than NONE in Ftool). – Wasabi Aug 17 '15 at 10:39
  • Thanks Mr. Wasabi. However I am not sure what I have missed. I just keep getting the error msg: You must define materials to all members. That's the reason I tried to define generic properties to the materials even for such isostatic structure. – saldtch Aug 19 '15 at 08:00
  • @saldtch, this is starting to veer away from the original subject of the question, but you must apply materials and cross-section attributes to the bars. I suggest you return to the Ftool site and go through the tutorials that are available in the Downloads area, where you will get the general gist of how to use the program. Also, a new version of the program (3.01) was released on Friday, so you may want to update to that version (though it is irrelevant for your current question). – Wasabi Aug 19 '15 at 10:42
  • Sorry for raising some off-topic questions, I will make my best efforts to get Ftool working for me. Thanks! – saldtch Aug 20 '15 at 02:00
  • @saldtch, no problem. I really suggest using the tutorials on the site. Ftool is quite a simple (but very useful!) program and the tutorials really do a good job of showing the steps to making models. I know how to deal with your problem, but I'll leave it to you to go through the tutorials as an exercise and learn how to do it. – Wasabi Aug 20 '15 at 02:40