6

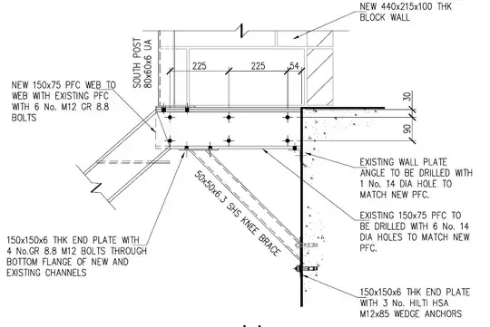
Consider the following steelwork drawing:

enter image description here

The location of the 6 no. M12 bolts are indicated with a circle and cross.

However, it is not clear whether the shank of the bolts should point into or out of the page. Without explicitly drawing the nut and bolt, what is a shorthand way to indicate the direction of the bolt shank and location of the nut?

EDIT: I've done some digging and it seems there is no short hand for this. It is dealt with via an explicit drawing of the washer/nut and the use of drawing notes. I'll keep the question open in the hopes someone knows a shorthand way to notate which side the nut is to go on

enter image description here

egg
  • 857
  • 6
  • 14
  • What makes you think this needs to be defined? The performance should be the same either way around, so it comes down to what's easier to install on site? – Jonathan R Swift Feb 24 '21 at 12:50
  • 2
    If you don't say, the vendor/contractor will decide for you. In machine drawings you would never leave this undefined. (A detail view might be used in that context). No idea about architectural / construction – Pete W Feb 24 '21 at 13:19
  • @JonathanRSwift In this case for aesthetic reasons I would have preferred the bolt heads on the visible unobscured side. There are no performance implications. For future reference I would like to know how to notate this on the drawing. – egg Feb 24 '21 at 13:51

2 Answers2

6

In structural construction, if it doesn't matter, it is left up to the contractor to put the bolts in however makes it easier for them.

If it matters for some reason (clearance, aesthetics, etc.) then there should be a note. Drawing a bolt head on the drawing and making it clear that it is not a nut and will be noticed by the contractor is hard. It is easier to add a general note or a call out that says, "Bolt heads shall face ... ".

I had a project where we were modifying an existing riveted structure. The client wanted the modifications to be as invisible as possible. For this project, we had to specify twist-off bolts with button heads. The button heads were exposed which made it harder for the contractor to get the twist-off wrench into tight spaces. This all was covered with one general note that said that the bolt head was to be on the exposed surface.

hazzey
  • 10,682
  • 9
  • 42
  • 93
  • I once came across a 1" TC bolt with what looked like a 3/4" bolt's head. My first instinct was "they put the wrong head on," but upon reflection I figured that the forging process wouldn't admit such mistakes. My next guess was that the bolt was specially manufactured to rehab riveted structures (head clearance and/or aesthetics). Can you confirm that such bolts get manufactured? I've always wondered about that dumb bolt, just not enough to bother the manufacturer. – popham Mar 08 '21 at 21:34
2

I'm not sure about structural drafting but in "pure" science vectors going into a page are marked with an X and out of the page with a large dot. Images at bottom of page

Not really an answer but couldn't post a link in the comments, either because of SE's limitations or my own

jko
  • 2,347
  • 3
  • 13