I would like to understand if a "typical" car could be able to turn in this space at the entrance to the underground garage. How can I set up my calculation? I have a 2.5 meter mouth at the entrance as shown in the figure.
Thank you for support
- 11
- 1
-
So calculate it using the "typical" turning circle of the typical car you have. – Solar Mike Sep 04 '21 at 17:17
-
Here are some parking skills: https://www.youtube.com/watch?v=1Ws8gNlyoLM – Solar Mike Sep 04 '21 at 19:38
2 Answers
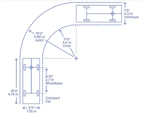
1) Per AASHTO Geometric Design of Highways and Streets (2004)
2) The 90° turning path of a passenger vehicle measures the minimum possible turning radius needed when designing parking, loading, and drop-off spaces.

3) Design Considerations:
The principal dimensions affecting design are the minimum centerline turning radius, the wheelbase, and the path of the inner rear tire.
Effects of driver characteristics (such as the speed at which the driver makes a turn) and the slip angles of wheels are minimized by assuming that the speed of the vehicle for the minimum radius (sharpest) turn is 10 mph (15 km/h) or less.
The boundaries of the turning paths of the several design vehicles when making the sharpest turns are established by the outer trace of the front overhang and the path of the inner rear wheel.
This turn assumes that the outer front wheel follows the circular arc defining the minimum turning radius as determined by the vehicle steering mechanism.
https://nacto.org/docs/usdg/design_vehicles_turning_radii_washburn.pdf
4) Turning Radius Calculator
- 7,917
- 3
- 8
- 27
There are two concerns to be addressed. The code and common sense.
Neither will be okay in this case.
Most of the building codes in California require 25 feet, 7.5 meters arc of a free path for residential parking, with some exceptions for narrow properties by special waver down to 6 meters. I don't know where you are but it should be similar.
If you cut a scaled cardborad car trying to maneuver it in your plan and consider leaving a minimum of 40cm clear around it minding the path the middle of the car cuts is closer to the curve than the wheels, and the fact that the front wheels trace lager radius then you get an idea of how much space is needed to physically clear the corners. And remember not all people are stunt drivers.
- 21,714
- 2
- 18
- 38



