1

Are there any heuristics / thumb-rules to evaluate whether a shed-structure has been efficiently designed?

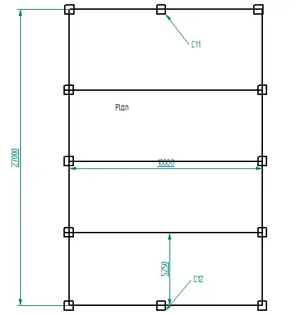
To be specific, I have an industrial shed, 12 m tall, 270 m2 floor area (longest span 10 m) & the structural design submitted needs approx. 22 tons of structural steel.

Are there any thumb rules to judge if this is reasonably efficient? Or has the designer lazily just submitted an overly conservative design?

Being a non-snow location with no roof access & no winches / gantry cranes the roof loads ought to be really light. Intuitively 22 tons seemed a lot of steel for this to me.

If adding more details or even the entire design would help judging I can do that.

Perhaps others can give me numbers from other projects?

enter image description here

enter image description here

CL22
  • 1,284
  • 1
  • 11
  • 34
curious_cat
  • 432
  • 3
  • 10
  • 1
    Another consideration is to not focus so much on the weight of steel. The structure could certainly be redesigned to have a lower weight of steel but be much more costly to fabricate. A "prefabricated building" may have some unique features (curved corners, tapered beams) that are material efficient, but costly in labor to fabricate. These are only economical because they are mass produced. – hazzey May 03 '16 at 14:29
  • It allways makes me a bit suspicious if the drawing has dimensions not in scale (underlined) any reasonably modern CAD can regenerate the images to scale. Also once things are in scale its so much easier to do all the automated calculations. – joojaa May 04 '16 at 06:54
  • @joojaa To be fair, that's entirely my fault not the original designer's. I have paper copies of his drawings & I made quick sketches to illustrate the questions I was asking on here. And I should learn how to do them in scale in Solid Edge. But for now I don't know. So I just sketched & inserted the right dimensions. – curious_cat May 04 '16 at 07:04

1 Answers1

4

Reading your question, my understanding is that you trust your engineer to have done at least a reasonable job designing the structure. You aren't worried the structure might collapse, that the engineer might have forgotten a load case or that they might have chosen inefficient cross-sections types (i.e, they didn't use rectangular columns). I understand you are only concerned with knowing whether the structure, as is, is inefficient.

There are therefore two ways the structure might be inefficient: the structural plan is poorly designed and/or the cross-sections adopted for each element are excessive and therefore inefficient.

A 10-meter span sounds pretty reasonable at a glance, as does the elevation presented, so I don't think we need to concern ourselves with the "poorly designed plan" scenario. This leaves us only to check the cross-sections.

Steel elements are often designed according to a "utilization rate". This is a value which goes from 0.0 to 1.0, where 0.0 means the element is not under any loading under any circumstance and 1.0 means that under some load combination the element is having to resist forces exactly equal to its design strength. Obviously, a utilization rate above 1.0 means the element risks failure (though I believe some codes allow rates slightly above 1.0 in some situations).

An easy way to check your engineer's work is to look at their design calculations for each element and check the utilization rates (they may also be expressed in terms of "this element suffers $X$ and can resist $Y$, $X < Y \therefore \text{OK!}$", in which case the rate is equal to $\frac{X}{Y}$). If they are all close to 1.0, then the structure isn't overly conservative.

What exactly counts as "close to 1.0" is tricky to define. Steel elements have discrete cross-sections; you can choose between section A or B. In some cases, it may be that section A is insufficient (utilization rate above 1.0), while section B is quite a bit bigger, in which case the engineer will have no choice but to select B, even though its rate isn't very efficient. Therefore, unless you're an engineer yourself and can actually redo your engineer's math testing other possible cross-sections, I suggest you be generous in what you consider "close to 1.0".

Obviously, if all of the elements are requiring your generosity, then that probably means that a slight modification to the plan would improve significantly your global design. For instance, a 10-meter span between the supporting frames shown in the elevation may mean that the columns fell under the "section A or B" scenario described above. In such a case, it may be that reducing that span just a bit allows you to improve significantly the efficiency of your columns.

That being said, if you have a continuous element, you might have different rates for different parts of the element. For example, a continuous beam with multiple spans of different lengths might have a rate for each span. The engineer must then decide between making a uniform beam which is equal for all spans (and which will therefore be a bit inefficient in the smaller spans) or use different cross-sections for each span. The latter choice may be more material-efficient (since you optimize the cross-section for each span), but may very well actually be more expensive due to the increased complexity of the joints. The decision between these two choices is not trivial, so I honestly suggest accepting your engineer's better judgement (if you have any confidence in it). The same applies to columns: those at the corners will usually have to resist lower forces than the central ones, so the engineer must decide between adopting one cross section for all columns or different sections for each one. In this case, it is very common to adopt one section for all.

If you are truly concerned about the design, another option would be to hire a second engineer to do a quick "quality control" check of your project.

Wasabi
  • 13,048
  • 7
  • 35
  • 61
  • Thanks Wasabi. I think it boils down to egineering creativity. The constraints were minimal: The shed should cover 27x10 & at least be 12 high. The Engineer was free to design any shed that fit this constraint. Now it is possible to make many "acceptable" designs but only few will be optimal designs. So perhaps rather than hire a 2nd Engineer to do a Quality Control check it might be more productive to get him to also design to the same constraints from scratch? And then compare the steel requirements of independent designs? – curious_cat May 03 '16 at 11:38
  • What I was looking for was something like a benchmarking heuristic. e.g. A typical building needs x kg concrete per m2 per storey or some such number. They tend to be common in industry. Was wondering if any such exist in structure design. – curious_cat May 03 '16 at 11:40
  • Alternatively if I could simulate the structure in some program and identify if there are members that seem extremely lightly loaded. A lot of such members would be a warning sign that someone has been too generous. – curious_cat May 03 '16 at 11:41
  • 2
    @curious_cat: You could do that, but it'd be more expensive. You'd basically be hiring two engineers to do two projects. I suggested the quality control check because it'd be cheaper. Also, if the reply is "this project is garbage", you can go back to the first engineer and ask them to improve their project at no (or low) cost. And there are programs that do what you want, but they should really only be used by engineers: they are full of small details which can have a surprising effect on the result (some people become "structural model making" professionals and that is all they do). – Wasabi May 03 '16 at 11:44
  • I'm exploring your "poorly designed plan" scenario a bit more: If you see the modified plan sketch I posted the distance between success columns / trusses in the other direction is only 5250 mm. Is that a reasonable choice or too short? – curious_cat May 03 '16 at 11:54
  • @curious_cat: It's actually hard to tell without looking at the plan itself. I said that 10 meters was reasonable only because it wasn't ridiculously short. My gut-check says 5 may be a bit short, but it's not completely unreasonable. – Wasabi May 03 '16 at 11:59
  • Another point was these two extra end columns (C11 & C12). If columns on the center line of the plan are avoided at all other locations why have them at the ends? That was another design decision I strained to understand. It makes all other spans 10 m but the end spans 5 m although the columns themselves are identical. – curious_cat May 03 '16 at 12:04
  • 1
    @curious_cat: It may be due to the height of the structure, which without lateral restraints risks buckling of the column. This would imply in having to reduce the inter-frame spans to reduce the loads in each column. Without doing the math it's hard to tell. Regarding the extra columns, that's probably for wind loads. The engineer only placed them around the exterior so that the interior would be clear of obstructions. This would, however, require a different frame structure on these exterior faces (how is the central column joined to the roof?). – Wasabi May 03 '16 at 12:09
  • Thanks! The drawing unfortunately doesn't show the column-to-roof connection details. I will ask for those. It seems like the central column ought to end at the Collar Beam from the drawings. – curious_cat May 03 '16 at 12:52
  • 1
    PS. About your "they should really only be used by engineers" comment. I am an Engineer. Just not the right kind! :) – curious_cat May 03 '16 at 13:06
  • @curious_cat "Not the right kind of engineer" is not necessarily a substantial improvement on "not an engineer." Not sure if you are licensed but as far as ethics and liability are concerned, the only engineering ability that counts is the "right kind" for the job. I think we can understand Wasabi to have meant that structural engineering software is best used by structural engineers and not, say, biochemical engineers. – Air May 03 '16 at 18:18
  • 1
    @Air Indeed. The ultimate structure will be certified by a licensed structural engineer. But as a stakeholder in the project I expect you will agree I am justified in digging deeper & doing my due diligence. There's a difference between self-prescribing medication & doing your independent research on a drug the doctor prescribed & constructively questioning his choices. – curious_cat May 04 '16 at 04:21